搜索

产品中心
进口不锈钢蓝式过滤器

类别:进口过滤器   发布时间:2021-01-11 11:07   浏览:


格林巴赫托普,巴赫BACH进口泵阀品牌。
        格林巴赫托普,专注于进口不锈钢蓝式过滤器制造商,主要产品:水泵,阀门,水处理设备等系列产品的制造、销售、售后服务,进口不锈钢蓝式过滤器产品应用在化工、石化、石油、造纸、采矿、电力、液化气、食品、制药、给排水等领域。

蓝式过滤器是工业生产中不可缺少的管道附件,安装在管道上能滤除流体中的固体杂质,保证管线设备系统正常地运行,可使流体更加纯净,获得理想的工业产品;使用一段时间后打开上盖取出象提蓝子式的过滤网,一经洗刷即可以恢复如新。因此,在石油、化工、制药、食品等行业中得到了广泛的应用,深受用户的青睐。
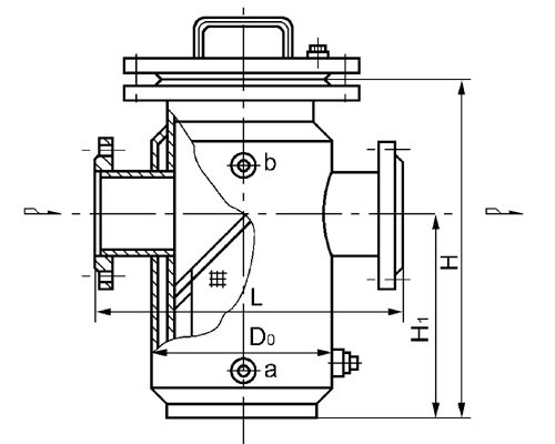
1、蓝式法兰连接直通平底式过滤器(DGLI-F型)
2、蓝式法兰连接重叠型直通平底式过滤器(DGLMI-F型)
公称直径
DN
结构尺寸(PN≤5.0MPa)mm

管塞
N
L
H
H1
D0
25
180
260
160
Φ76
Rc3/4
32
200
270
160
Φ76
40
260
300
170
Φ108
50
260
300
170
Φ108
65
330
360
210
Φ108
80
340
400
250
Φ108
100
400
470
300
Φ219
125
480
550
360
Φ273
150
500
630
420
Φ273
200
560
780
530
Φ325
250
660
930
640
Φ426
M20x1.5
300
750
1200
840
Φ476
3、蓝式带夹套型法兰连接直通平底式过滤器(DGLJI-F型)
公称直径DN 安装尺寸MM 夹 套 管塞
N
L H H1 蒸汽
压力
D0 进口a 出口b
25 215 350 180 ≤0.6MPa Φ108 G3/4 G3/4 Rc3/4
32 235 360 180 Φ108
40 300 430 210 Φ159
50 300 430 210 Φ159
65 450 490 250 Φ159
80 460 530 290 Φ273 DN20 DN20
100 500 600 345 Φ325
125 580 700 410 Φ377 DN25 DN25
150 600 780 470 Φ377
200 660 930 580 Φ426
4、蓝式法兰连接直通对头式过滤器(DGLII-F型)
5、蓝式法兰连接重叠型直通对头式过滤器(DGLMII-F型)
公称直径
DN
公称压力
PN
结构尺寸 mm
管塞
N
L
H
H1
H2
D0
D0
D0
200
≤5.0MPa
800
1680
300
1310
Φ500
Φ420
3-Φ20
Rc1"
250
840
1850
300
1450
Φ550
Φ450
3-Φ20
Rc1"
300
960
2050
300
1610
Φ600
Φ520
3-Φ24
Rc1"
350
1060
2210
300
1740
Φ700
Φ620
3-Φ24
Rc1"
6、蓝式法兰连接高低接管平底式过滤器(DGLIII-F型)
7、蓝式法兰连接重叠型高低接管平底式过滤器(DGLMIII-F型)
公称直径
DN
公称压力
PN
结构尺寸 mm
管塞
N
L
H
H1
H2
D0
25
≤5.0MPa
180
280
110
180
Φ76
Rc3/4
32
200
285
110
180
Φ76
40
260
340
120
220
Φ108
50
260
340
120
220
Φ108
65
330
400
160
270
Φ133
80
340
460
180
320
Φ159
100
400
550
200
390
Φ219
125
480
630
260
450
Φ273
150
500
720
310
530
Φ273
200
560
900
390
670
Φ325
250
660
1070
480
800
Φ426
M20x1.5
300
750
1360
640
1040
Φ478

声明:本产品介绍中所有文字、数据、图片考虑到使用工况条件不同,难免会产生误差、不恰当或是有不充分的描述,故均适用于参考,同一种产品在不同的场合与工况有不同的搭配,如果您对本文中所提供的产品内容有任何疑问,如果您是非专业人士,欢迎您向本公司来电咨询,请您联系我们,我们将竭诚为您服务!

技术QQ;1104602307
销售电话 :13621840325(微信同号)。