类别:美国进口阀门 发布时间:1970-01-01 08:00 浏览: 次

进口电动偏心半球阀描述--
ALSO电动双偏心半球阀由回转型角行程电动执行器和偏心半球阀组成,属旋转类型高性能开关或调节阀,接受工业自动化控制仪表来源的电流信号或电压信号的输入输出,可实现对工艺管路中流体介质的流量调节或二位开关控制,通常用于管道介质的远程控制,是对阀门实现远控、集控和自控必不可少的驱动装置
进口电动偏心半球阀球阀特点--
1.启闭件采用V型半球结构,解决了工业生产中的浆状、混流液体、灰尘等介质在管道输送中沉淀、易结垢、阻塞,使阀门关不严等问题。
2.开关轻便,开启时球与壳体脱离,无任何接触,启动扭矩小,转动灵活。关闭时,半球与阀座的挤切作用能除去密封面上的污物,使阀门顺利启闭,安全系数高,密封性能好。
3.密封面的偏心结构,使球面能自动补偿磨损,能保持阀门的密封,使用寿命长。
4.偏心半球阀V型切口的球芯与金属阀座之间具有剪切作用,特别适用于含纤维、微小固体颗粒及料浆等介质。
5.球阀采用板簧加载的可动阀座结构,阀座与球体不会产生卡阻或脱离等问题,密封可靠,使用寿命长
6.全开启时阀门的流通能力大,压力损失小,通用性强,调节时流量特性为近似等百分比,可调范围大,最大可调比为100:1
进口电动偏心半球阀性能参数--
| 公称压力MPa | 1.0 | 1.6 | 2.5 | 4.0 |
|---|---|---|---|---|
| 阀门强度试验压力MPa | 1.5 | 2.4 | 3.8 | 6.0 |
| 阀门密封试验压力MPa | 1.1 | 1.8 | 2.8 | 4.5 |
| 适用温度℃ | ≤425℃ ≤325℃常温 | |||
| 主要材质 | 铸钢、不锈钢 | |||
| 适用介质 | 煤粉、煤灰、含尘、气 | |||
进口电动偏心半球阀零件材料--
| 零件名称 | 材料 | |||
|---|---|---|---|---|
| 阀体、阀盖 | WCB | 304(CF8) | 316(CF8M) | 316L(CF3M) |
| 球体 | 2Cr13+氮化处理 | 304 | 316 | 316L |
| 阀杆 | 2Cr13 | 304 | 316 | 316L |
| 阀座密封圈 | PTFE、碳素纤维+PTFE、对位聚苯、金属密封 | |||
| 密封填料 | V型聚四氟乙烯填料、含浸聚四氟乙烯石棉填料、石棉纺织填料、石墨填料 | |||
进口电动偏心半球阀典型应用--
1、通用阀:适用于污水处理、纸浆、城市采暖供热等要求严紧的场合。
2、油化工专用阀:适用于原油、重油等各类油品、化工行业弱腐蚀、二相混流介质。
3、燃气专用阀:适用于煤气、天燃气、液化气的输送控制。
4、料浆专用阀:适用于液态、固态两相混流或液态输送中化学反应有结晶析出或结垢的工业管道输送。
5、煤粉灰渣专用阀:耐磨,适用于电厂、水力除渣或气态输送管道的控制。
进口电动偏心半球阀电装可选--
电压:AC220/380/110V、DC24V等;
开关型、调节型(4-20mA);
普通或防爆要求;
开关机械限位,开关位置可微调;
可手动操作;
可视指示器;
| 执行器类别 | JO系列执行器参数 | 3610R系列执行器参数 | HQ系列执行器参数 |
|---|---|---|---|
| 电源电压 | 标准:220V AC单相 可选:110V AC 单相、380/440V AC 三相、24V/110V/220V AC | ||
| 输出力矩 | 50N·M~2000N·M | 50N·M~1500N·M | 50N·M~3000N·M |
| 动作范围 | 0~90° 0~360° | 0~90° | 0~90°、0°~270°可选 |
| 控制方式 | 开关到位灯(开关两位控制)、无源触点信号、1/5K电位计、智能调节(4~20mA模拟量信号控制) | ||
| 动作时间 | 15秒/30秒/60秒 | 10秒/15秒/30秒 | 18S~112S |
| 保护装置 | 过热保护 | 过载保护 | 内置过热保护、过载保护 |
| 环境温度 | -30°~60° | -30°~60° | -20℃~+70℃ |
| 手动操作 | 同附带手柄操作 | 同附带手柄操作 | 机械离合机构,配手轮操作 |
| 机械限位 | 电气、机械二重限位 | 电气、机械二重限位 | 2个外部调整螺栓 |
| 防护等级 | IP65 | IP55 | IP65、IP67、可定制IP68 |
| 防爆等级 | 无防爆 | ExdⅡ BT4 | ExdⅡ BT4,ExdⅡ CT6 |
| 位置测量 | 可选装开关或电位计 | 比例控制单元 | 电位计、比例控制单元 |
| 驱动电机 | 8W/E | AC可逆电机 | 鼠笼式异步电机 |
| 进线接口 | PE1/2〞进线线锁 | 2-PF 1/2〞进线线锁 | 2个 PF 3/4” |
| 壳体材料 | 铝合金 | 钢,铝合金 | 钢,铝合金,铝青铜,聚碳酸脂 |
| 外涂层 | 干粉,环氧聚酯,具有超强防腐功能 | ||
| 采用独特的电制动线路,因而定位精度高,执行机构灵敏,启动停止迅速,运行平稳。同时具有抗干扰、抗浪涌电压、防击穿能力强的特点 | |||
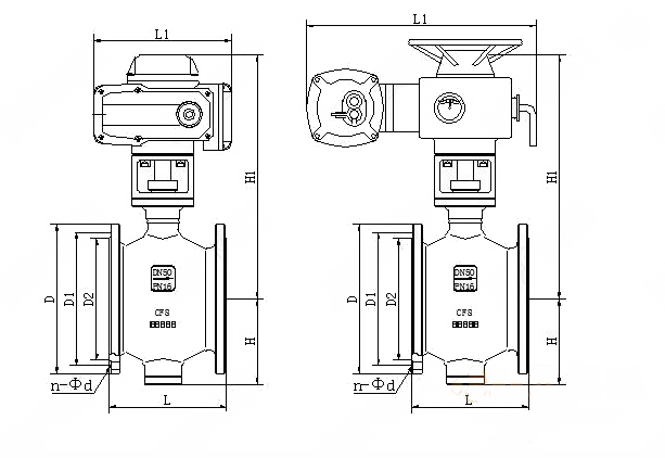
进口电动偏心半球阀外形尺寸--

| PN1.0MPa (10bar) | |||||||||
| 32 | 180 | 357 | 140 | 100 | 76 | 18 | 4-18 | 65 | 450 |
| 40 | 200 | 357 | 150 | 110 | 84 | 18 | 4-18 | 75 | 460 |
| 50 | 250 | 357 | 165 | 125 | 99 | 20 | 4-18 | 90 | 480 |
| 65 | 270 | 357 | 185 | 145 | 118 | 20 | 4-18 | 105 | 500 |
| 80 | 280 | 367 | 200 | 160 | 132 | 20 | 8-18 | 120 | 520 |
| 100 | 300 | 367 | 220 | 180 | 156 | 22 | 8-18 | 135 | 630 |
| 125 | 325 | 367 | 250 | 210 | 184 | 22 | 8-18 | 155 | 650 |
| 150 | 350 | 367 | 285 | 240 | 211 | 24 | 8-22 | 175 | 680 |
| 200 | 400 | 555 | 340 | 295 | 266 | 24 | 8-22 | 210 | 770 |
| 250 | 533 | 555 | 395 | 350 | 319 | 26 | 12-22 | 260 | 820 |
| 300 | 610 | 691 | 445 | 400 | 370 | 26 | 12-22 | 300 | 840 |
| 350 | 686 | 733 | 505 | 460 | 429 | 26 | 16-22 | 340 | 1090 |
| 400 | 838 | 733 | 565 | 515 | 480 | 26 | 16-26 | 400 | 1205 |
| 450 | 864 | 938 | 615 | 565 | 530 | 28 | 20-26 | 430 | 1220 |
| 500 | 914 | 938 | 670 | 620 | 582 | 28 | 20-26 | 455 | 1270 |
| 600 | 1067 | 1066 | 780 | 725 | 682 | 34 | 20-30 | 560 | 1400 |
| 700 | 1250 | 1066 | 895 | 840 | 794 | 34 | 24-30 | 630 | 1460 |
| 800 | 1370 | 1191 | 1015 | 950 | 901 | 36 | 24-33 | 690 | 1520 |
| 900 | 1490 | 1191 | 1115 | 1050 | 1001 | 38 | 28-33 | 770 | 1580 |
| 1000 | 1680 | 1255 | 1230 | 1160 | 1112 | 38 | 28-36 | 880 | 1830 |
| 1200 | 1750 | 1255 | 1455 | 1380 | 1328 | 44 | 32-39 | 970 | 1910 |
| 1400 | 1880 | 1255 | 16754 | 1590 | 1530 | 48 | 36-42 | 1095 | 2020 |
| PN1.6MPa (16bar) | |||||||||
| 32 | 180 | 357 | 140 | 100 | 76 | 18 | 4-18 | 65 | 450 |
| 40 | 200 | 357 | 150 | 110 | 84 | 18 | 4-18 | 75 | 460 |
| 50 | 250 | 357 | 165 | 125 | 99 | 20 | 4-18 | 90 | 480 |
| 65 | 270 | 357 | 185 | 145 | 118 | 20 | 4-18 | 105 | 500 |
| 80 | 280 | 367 | 200 | 160 | 132 | 20 | 8-18 | 120 | 520 |
| 100 | 300 | 367 | 220 | 180 | 156 | 22 | 8-18 | 135 | 630 |
| 125 | 325 | 367 | 250 | 210 | 184 | 22 | 8-18 | 155 | 650 |
| 150 | 350 | 367 | 285 | 240 | 211 | 24 | 8-22 | 175 | 680 |
| 200 | 400 | 555 | 340 | 295 | 266 | 24 | 12-22 | 210 | 770 |
| 250 | 533 | 555 | 405 | 355 | 319 | 26 | 12-26 | 260 | 820 |
| 300 | 610 | 691 | 460 | 410 | 370 | 28 | 12-26 | 300 | 840 |
| 350 | 686 | 733 | 520 | 470 | 429 | 30 | 16-26 | 340 | 1090 |
| 400 | 838 | 733 | 580 | 525 | 480 | 32 | 16-30 | 400 | 1205 |
| 450 | 864 | 938 | 640 | 585 | 548 | 40 | 20-30 | 4, 30 | 1220 |
| 500 | 914 | 938 | 715 | 650 | 609 | 44 | 20-33 | 455 | 1270 |
| 600 | 1067 | 1066 | 840 | 770 | 720 | 54 | 20-36 | 560 | 1400 |
| 700 | 1250 | 1066 | 910 | 840 | 794 | 40 | 24-36 | 630 | 1460 |
| 800 | 1370 | 1191 | 1025 | 950 | 901 | 42 | 24-39 | 690 | 1520 |
| 900 | 1490 | 1191 | 1125 | 1050 | 1001 | 44 | 28-39 | 770 | 1580 |
| 1000 | 1680 | 1255 | 1255 | 1170 | 1112 | 46 | 28-42 | 880 | 1830 |
| PN2.5MPa (25bar) | |||||||||
| 32 | 180 | 357 | 140 | 100 | 76 | 18 | 4-18 | 65 | 450 |
| 40 | 200 | 357 | 150 | 110 | 84 | 18 | 4-18 | 75 | 460 |
| 50 | 250 | 357 | 165 | 125 | 99 | 20 | 4-18 | 90 | 480 |
| 65 | 290 | 357 | 185 | 145 | 118 | 22 | 8-18 | 105 | 500 |
| 80 | 310 | 367 | 200 | 160 | 132 | 24 | 8-18 | 120 | 520 |
| 100 | 350 | 367 | 235 | 190 | 156 | 24 | 8-22 | 135 | 630 |
| 125 | 381 | 555 | 270 | 220 | 184 | 26 | 8-26 | 155 | 650 |
| 150 | 403 | 555 | 300 | 250 | 211 | 28 | 8-26 | 175 | 680 |
| 200 | 419 | 555 | 360 | 310 | 274 | 30 | 12-26 | 210 | 770 |
| 250 | 568 | 691 | 425 | 370 | 330 | 32 | 12-30 | 260 | 880 |
| 300 | 648 | 705 | 485 | 430 | 389 | 34 | 16-30 | 300 | 980 |
| 350 | 762 | 733 | 555 | 490 | 448 | 38 | 16-33 | 340 | 1090 |
| 400 | 838 | 938 | 620 | 550 | 503 | 40 | 16-36 | 400 | 1165 |
| 450 | 914 | 938 | 670 | 600 | 548 | 46 | 20-36 | 430 | 1220 |
| 500 | 991 | 938 | 730 | 660 | 609 | 48 | 20-36 | 455 | 1270 |
| 600 | 1143 | 1066 | 845 | 770 | 720 | 58 | 20-39 | 560 | 1400 |


